2 DORMITORIOS SAN JUAN Y CORRIENTES
USD 81.000
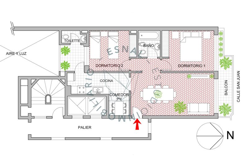
San Juan y Corrientes
Descripcion
Detalles de la Propiedad
Metros Cuadrados: 70
Tipo de Propiedad: Departamento
Antiguedad: Mas de 35 años
2 Dormitorios
Baños: 2
Caracteristicas Principales
Departamento en venta en el corazón del Centro, ideal para quienes buscan comodidad y funcionalidad. Esta propiedad de 70 m² ofrece un ambiente acogedor y bien distribuido. Cuenta con un living comedor, cocina independiente y lavadero. Dispone de 2 dormitorios y 1 baño, además de 1 toilette, ideal para familias o profesionales. El balcón ofrece vistas despejadas y orientación Norte, garantizando luminosidad.
Ubicado en un entorno privilegiado. La zona ofrece una amplia gama de servicios, desde supermercados y farmacias hasta centros educativos y de salud. Además, la cercanía a parques y espacios verdes proporciona opciones para el esparcimiento y la recreación al aire libre.
Edificio y departamento con adecuacion de gas realizada y funcionando.












